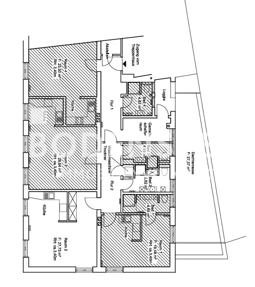
Es handelt sich um eine 1- Zimmer Wohnung mit moderner Einbauküche.
Das eigene Bad befindet sich gegenüber des Zimmers, auf dem Flur. Ein Einbauschrank steht ebenfalls dort zur Verfügung.
Die Dachterrasse gemeinschaftlich mit den anderen Bewohnern der Etage genutzt.
